号外!号外!我校新能源智能网联汽车技术产教融合实训基地正式开工建设!
据了解,该基地是为深入贯彻落实习近平总书记视察吉林重要讲话和重要指示精神,根据吉林省经济社会发展需要和汽车产业“新四化”转型升级需要,我校对照汽车先进制造水平提升和汽车前沿技术升级两大核心方向重点建设的产教融合实训基地项目。
该基地占地面积29450平方米,总建筑面积15506.10平方米,地上为三层,钢筋混凝土框架结构,局部一层实训车间为钢结构,并建有管网、道路、绿化等配套附属设施。

项目地块现状图

项目位置图
该项目建筑方案在规划上充分利用原有自然条件和地形地貌,尊重原有环境,因地制宜,尽量减少室外土方工程量,项目所在地块近似三角水滴型,建筑物为钝角V型建筑,建筑外部线条平直,为规则形状,和周边公建间距满足防护要求。建筑物位于整个校园的西北角,其所在地块与校园现址地块紧邻,所在地块东侧为车路协同区,南侧为校园既有校区。建筑物周围设有环形道路,可满足园区内交通使用和消防扑救。

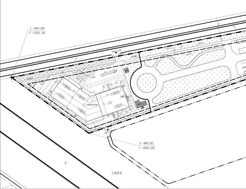
项目平面规划图
建筑物立面简洁大方,利用不同的建筑材料形成视觉上的冲击,营造出的虚实变化,富有韵律感。实训区和教研区分别采用浅灰色石材及浅灰色岩棉夹芯板作为基底,添加横向深灰色石材色带及横向深灰色岩棉夹芯板色带作为点缀,整体建筑形象厚重沉稳,简约大气,严谨庄重中又不失青春活力。



项目外立面效果图

项目外立面现场
实训基地以功能适用、绿色环保为设计理念。实训基地包含 “1个基地、6个实训区、16个技能岛”,其中,“1个基地”指整个实训基地;“6个实训区”指分布在实训基地内的动力电池实训区、线控底盘实训区、电气系统实训区、性能检测实训区、车路协同实训区、智慧物流实训区;“16个技能岛”是指每个实训区内针对教学、培训、学习、研发设计的关键技能模块。“1+6+16”共同形成集教学研究、技术开发、职业技能实际训练为一体的全方位智能网联实训基地。

项目鸟瞰图
该项目主体已于近日封顶,预计2024年7月完成全部建设内容,建成后能容纳1000名学生进行实训和学习,让我们共同期待吧!
撰稿:总务处 姜楠 审编:党委宣传统战部



